Bridgwater Museum
Copyright © Bridgwater Blake Museum 2022
Privacy First-hand Cookies are neither requested nor generated by this site
Museum Development 1997
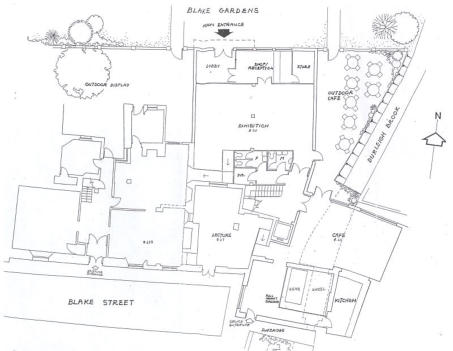
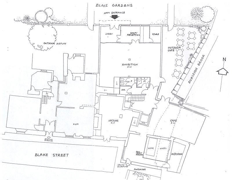
Drawings made for Development of the Museum and Old Town Mill site: A feasibility Study and Design Plan, June 1997, written after the fire of 1995. They show a two-storey extension in the lower garden reaching the boundary with Blake Gardens housing, public toilets and exhibition space The main entrance to the museum was to be through Blake Gardens, which was to be developed as an amenity. The mill wheel and gearing were to be restored and enclosed by a glazed screen, and adjoining this was a café and kitchens. The designs complied with the  Disability Discrimination Act of 1995, so lifts were provided as well as ramped access to parts of the building. The upper floor of the extension was to be used for artefact storage, in particular the museum's collection of photographic negatives, for which temperature and humidity controlled space was to be provided. Above the café a room was provided for research, which doubled as a meeting room, and also a kitchen. An office and workshop was on the upper floor of the Mill, adjoining Blake Street. Stairs and a lift served both floors, and a series of ramps for wheelchairs were built into the end gallery of the first floor, giving access to the original Blake House, in which was another lift giving access to the three upper galleries at the opposite end of the building.
If you wish to use any of the images contained within this website, please ask for permission first. Please do not steal other peoples work.
Development 1987
Development 1991
Development 1993
Development 1997